





![]()

Strandidylle Hausschild Frontansicht Terassenansicht
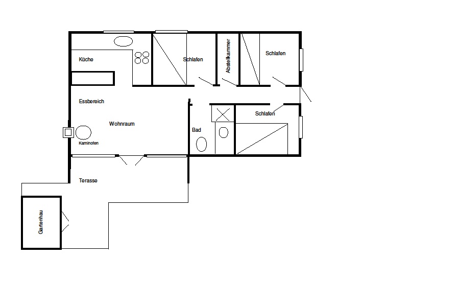
Elternschlafzimmer 140x200 Hinweisschild Einfahrt Schwedenofen Essecke Blick in die Küche![]()
Wohnzimmer Sitzecke Kinderzimmer Hochbetten 2. Schlafzimmer 140 x 200
Bad

Essecke Ansichten außen Kamin neu
Blick von Terasse aus