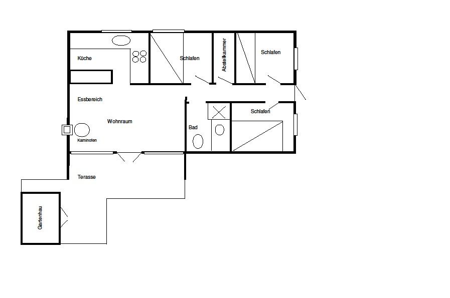
Der Grundriss des Hauses


 Elternschlafzimmer Bett 140 x 200 cm (mit Kinderbett)

 Kinderschlafzimmer 2 Etagenbetten

weiteres Schlafzimmer mit Bett 140 x 200 cm